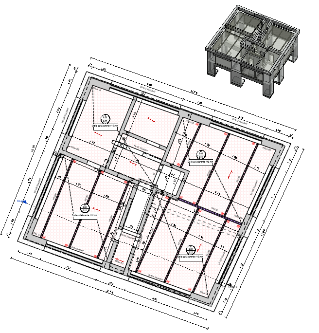
Construction d'usine en charpente métallique
Construction d’une usine moderne avec une charpente métallique innovante, conçue pour offrir un espace industriel solide et fonctionnel, avec des calculs précis et une planification détaillée.
Contactez-nous















